Описание Buderus Logamax U052-28K
Если Вы цените высокое удобство отопления и легкость управления оборудования, то новые настенные газовые котлы, работающие на природном газе, определенно придутся Вам по вкусу.
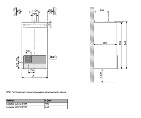
Logamax U052-28K — это комбинированный настенный котел с забором воздуха для горения из помещения или извне, со встроенной проточной системой приготовления ГВС.
Котлы Buderus отлично подойдут для малогабаритных квартир, дач и загородных домов. Прибор служит для обогрева и горячего водоснабжения помещений площадью до 300 кв.м.
Эти котлы являются оптимальным соотношением приемлемой цены и отличного качества.
Система отвода дымовых газов может быть выполнена как с забором воздуха для горения из помещения, так и вне помещения.
В таблице ниже мы видим общую схему всех котлов серии Logamax по типу отвода дымовых газов, приготовления воды для ГВС, системе управления и прочим деталям.
Коэффициент полезного действия данных котлов варьируется от 90 до 92 %. Экологически чистый режим работы является ощутимым преимуществом для оборудования этой линейки.
Во время нагрева бойлера ГВС сравнительно низкие поверхностные температуры уменьшают риск отложения солей кальция, содержащихся в питьевой воде. Все оптимизируется для работы без выпадения конденсата.
Эти характеристики повышают надежность и долговечность приборов. Газовые настенные котлы Buderus имеет хорошие монтажные и сервисные характеристики, кроме этого, котлы не требуют обширного технического обслуживания.
Лозунгом компании Buderus, выпускающей газовые котлы, является: "Всегда горячая вода, в любой момент. И с приятной температурой". История немецкой компании началась в 1731 году и с тех пор Buderus постоянно совершенствует представляемый ассортимент, являясь крупнейшим производителем теплового оборудования в Европе.
|
Вид нагрева
|
газовые |
|
Монтаж
|
настенные |
|
Производитель
|
Buderus |
|
Контуры
|
Двухконтурные |
|
Страна
|
Турция |
|
Модель
|
Buderus Logamax U052-28K |
|
Max мощность, кВт
|
28 |
|
Вес, кг
|
36 |
|
Электрическая мощность, Вт
|
130 |
|
Тип котла
|
Энергозависимый |
|
Камера
|
Закрытая |
|
Тип теплообменника
|
Раздельный |
|
Min мощность, кВт
|
9,1 |
|
Max давление отопит контура , Атм
|
3 |
|
Min давление отопит контура , Атм
|
0,5 |
|
Горелка
|
Модулируемая |
|
Возможность подключения бойлера
|
Да |
|
Номинальное давление природного газа, мбар
|
13 |
|
Присоединительный ø дымохода, мм
|
100/60 |
|
Присоединительный ø газопровода, дюйм
|
3/4 |
|
Присоединительный ø контур отопления, дюйм
|
8 |
|
Термостат защиты от перегрева
|
Да |
|
Контроль пламени
|
Да |
|
Интуитивно понятное управление
|
Да |
|
S отопления, м²
|
280 |
|
Циркуляционный насос
|
Да |
|
Max расход сжиженного газа, кг/ч
|
2,36 |
|
Погодозависимая автоматика
|
Да |
|
Функциональный ЖК дисплей
|
Да |
|
Возможность установки в жилой зоне
|
Да |
|
ø дымохода раздельного, мм
|
80 |
|
Производ-сть Δ ГВС 30С, л/мин
|
8 |
|
Основные режимы
|
Отопление/ГВС |
|
Гарантия
|
2 года |
|
Высота внутр, см
|
73,5 |
|
Ширина внутр, см
|
44 |
|
Глубина внутр, см
|
36 |
|
Габариты (ВхШхГ)
|
73,5х44х36 |
|
Напряжение (В-Фаза-Гц)
|
220 В |
|
Электропитание, ф/Гц/В
|
50 |
Для покупки товара в нашем интернет-магазине выберите понравившийся товар и добавьте его в корзину. Далее перейдите в Корзину и нажмите на «Оформить заказ» или «Быстрый заказ».
Когда оформляете быстрый заказ, напишите ФИО, телефон и e-mail. Вам перезвонит менеджер и уточнит условия заказа. По результатам разговора вам придет подтверждение оформления товара на почту или через СМС. Теперь останется только ждать доставки и радоваться новой покупке.
Оформление заказа в стандартном режиме выглядит следующим образом. Заполняете полностью форму по последовательным этапам: адрес, способ доставки, оплаты, данные о себе. Советуем в комментарии к заказу написать информацию, которая поможет курьеру вас найти. Нажмите кнопку «Оформить заказ».
Оплачивайте покупки удобным способом. В интернет-магазине доступно 3 варианта оплаты:
- Наличные при самовывозе или доставке курьером. Специалист свяжется с вами в день доставки, чтобы уточнить время и заранее подготовить сдачу с любой купюры. Вы подписываете товаросопроводительные документы, вносите денежные средства, получаете товар и чек.
- Безналичный расчет при самовывозе или оформлении в интернет-магазине: карты Visa и MasterCard. Чтобы оплатить покупку, система перенаправит вас на сервер системы ASSIST. Здесь нужно ввести номер карты, срок действия и имя держателя.
- Электронные системы при онлайн-заказе: PayPal, WebMoney и Яндекс.Деньги. Для совершения покупки система перенаправит вас на страницу платежного сервиса. Здесь необходимо заполнить форму по инструкции.
Экономьте время на получении заказа. В интернет-магазине доступно 4 варианта доставки:
- Курьерская доставка работает с 9.00 до 19.00. Когда товар поступит на склад, курьерская служба свяжется для уточнения деталей. Специалист предложит выбрать удобное время доставки и уточнит адрес. Осмотрите упаковку на целостность и соответствие указанной комплектации.
- Самовывоз из магазина. Список торговых точек для выбора появится в корзине. Когда заказ поступит на склад, вам придет уведомление. Для получения заказа обратитесь к сотруднику в кассовой зоне и назовите номер.
- Постамат. Когда заказ поступит на точку, на ваш телефон или e-mail придет уникальный код. Заказ нужно оплатить в терминале постамата. Срок хранения — 3 дня.
- Почтовая доставка через почту России. Когда заказ придет в отделение, на ваш адрес придет извещение о посылке. Перед оплатой вы можете оценить состояние коробки: вес, целостность. Вскрывать коробку самостоятельно вы можете только после оплаты заказа. Один заказ может содержать не больше 10 позиций и его стоимость не должна превышать 100 000 р.