Этапы взаимодествия
Отзывы монтажа вентиляция и кондиционеров
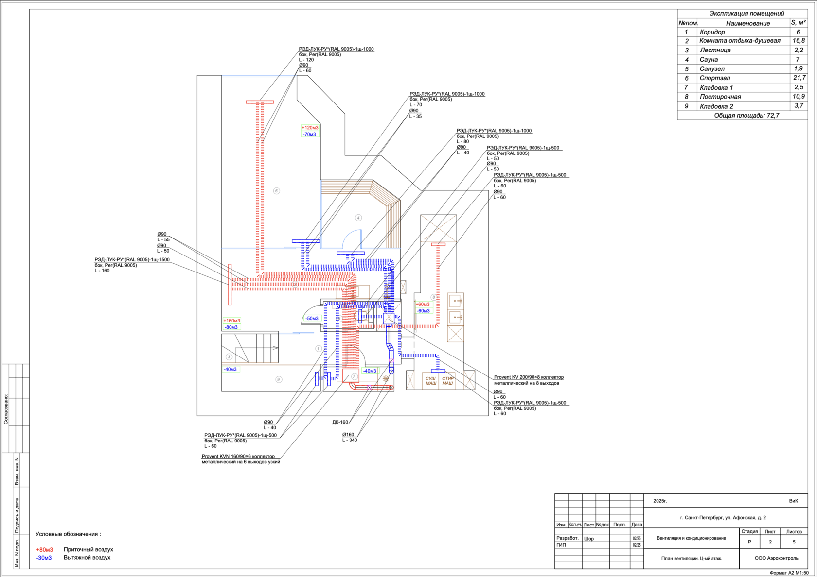
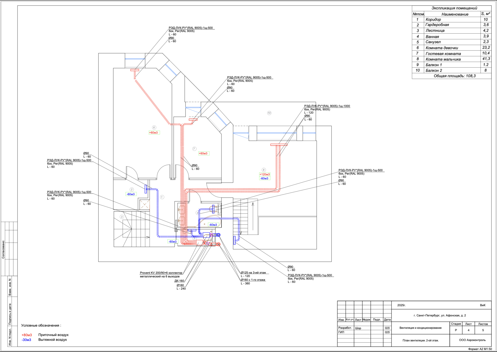
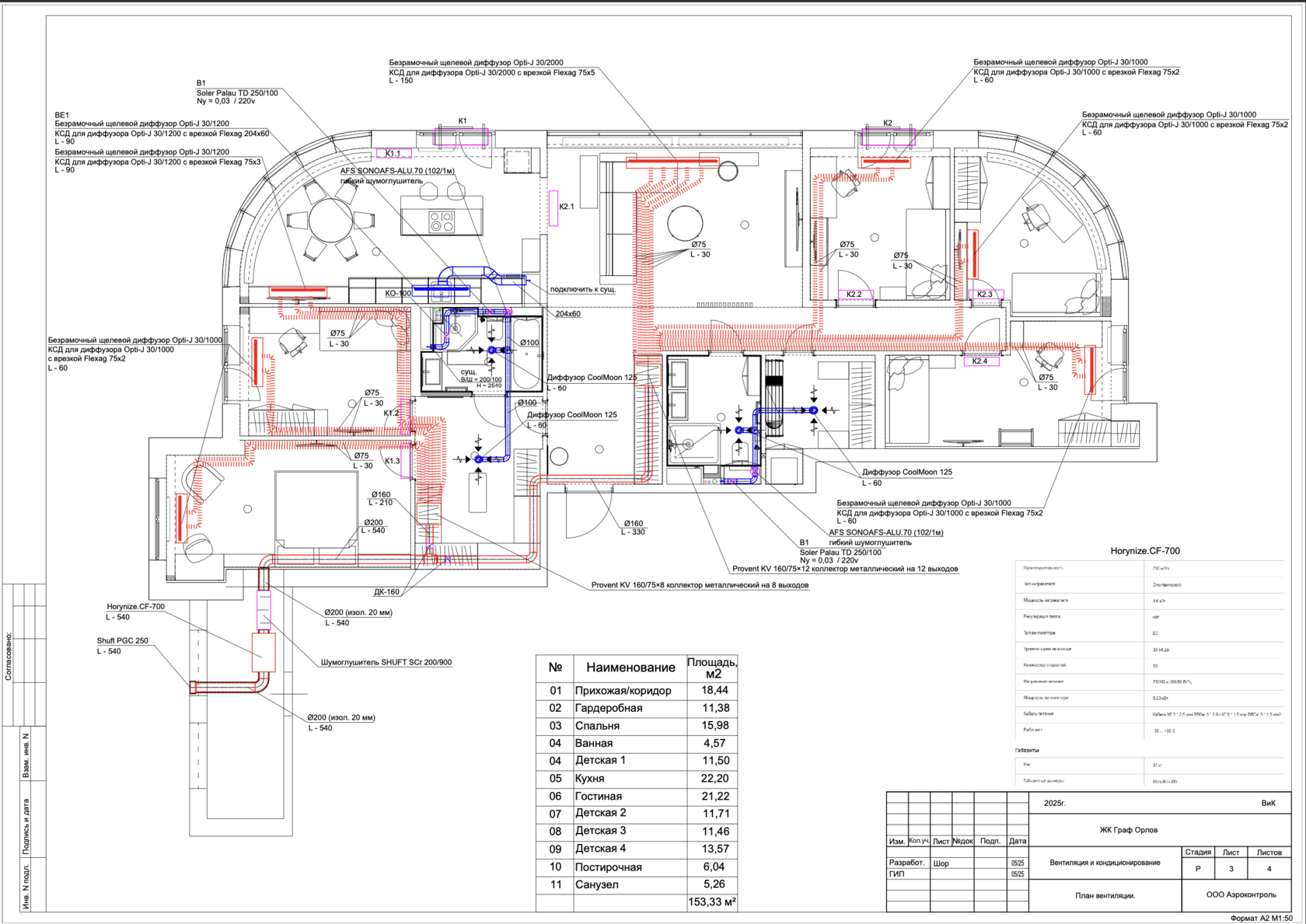
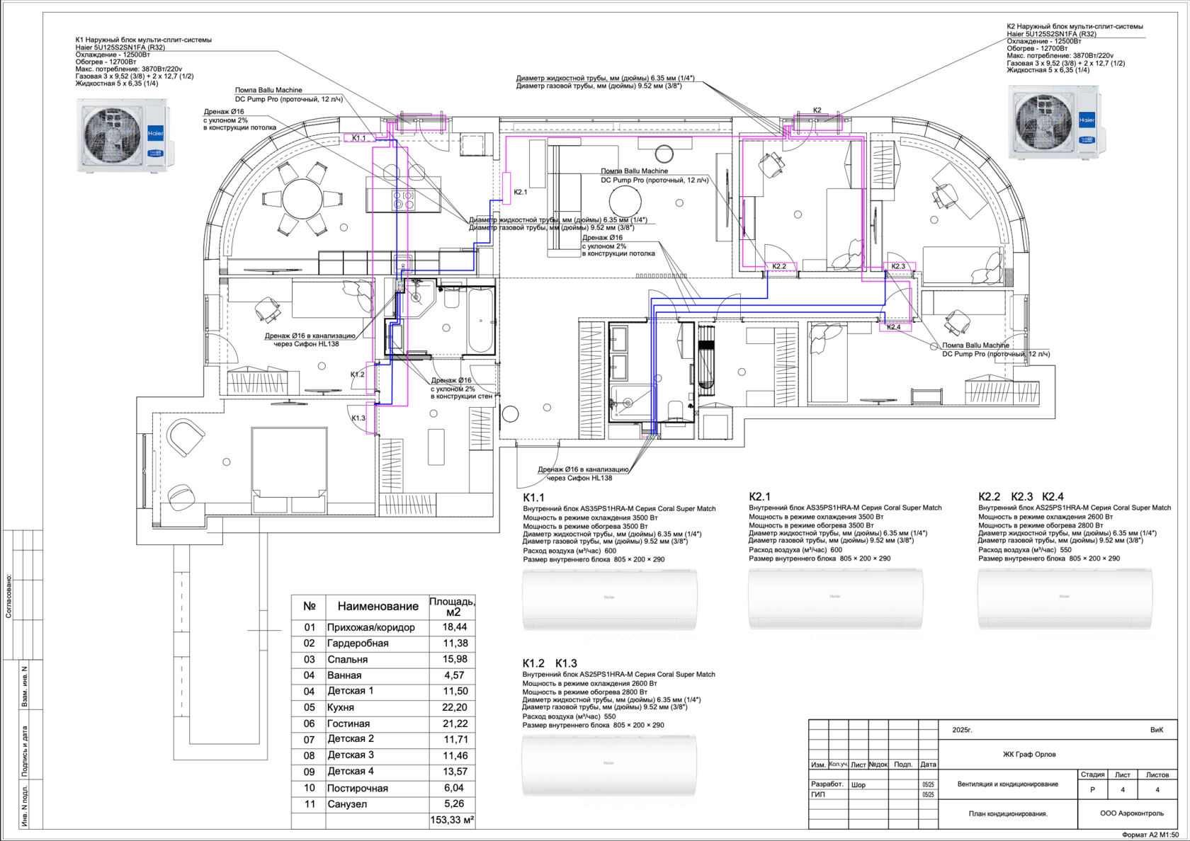
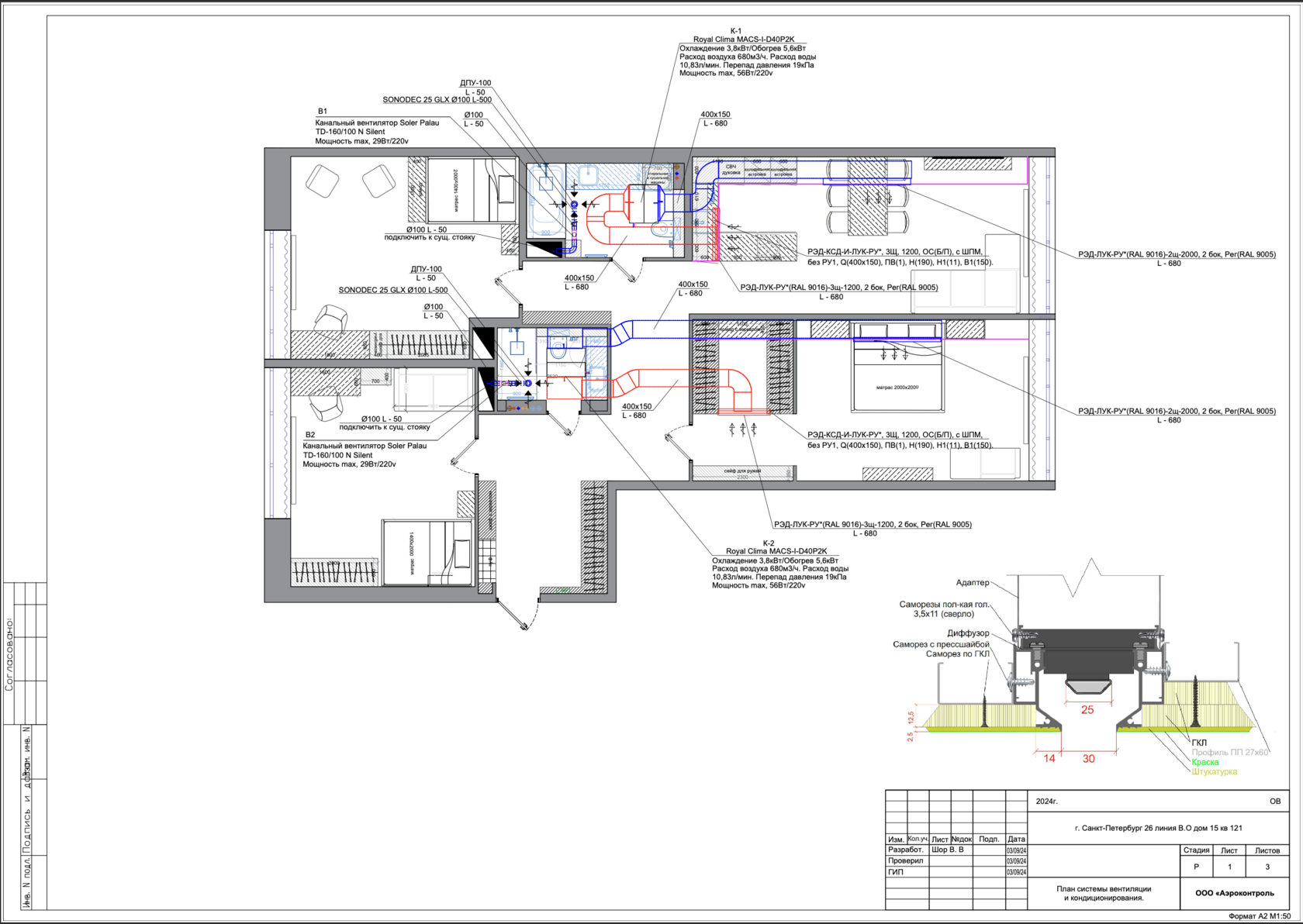
Примеры монтажа вентиляции в Санкт-Петербурге
Проектирование вентиляции и кондиционирования для квартир, домов и коммерческих объектов в Санкт-Петербурге
Проектирование вентиляции — это ключевой этап создания комфортного и безопасного микроклимата в любом помещении. От качества проекта напрямую зависит уровень кислорода, влажность, отсутствие запахов и долговечность инженерных систем. Именно поэтому проектирование вентиляции и кондиционирования рассматривается как единая задача, где каждая система дополняет другую.
В современных зданиях естественный воздухообмен практически не работает, особенно при герметичных окнах и утепленных фасадах. Поэтому вентиляция квартир проектирование становится обязательным этапом при ремонте или строительстве. Грамотно разработанная система обеспечивает стабильный приток свежего воздуха без сквозняков и лишнего шума.
Комплексный подход к проектированию
Сегодня эффективная система создается только при комплексном подходе. Мы выполняем проектирование вентиляции и кондиционирования помещений с учетом всех нагрузок и сценариев эксплуатации.
На практике это означает, что проектирование вентиляции кондиционирования воздуха выполняется совместно с другими инженерными системами. Дополнительно учитывается проектирование кондиционирование вентиляция отопление, чтобы исключить перегрузки оборудования и повысить энергоэффективность.
Этапы проектирования вентиляции
Сбор исходных данных
Первый этап — анализ объекта. Мы собираем данные для проектирования вентиляции: планировки, высоты потолков, назначение помещений и количество пользователей. Это позволяет избежать ошибок и выполнить правильное проектирование вентиляции.
Разработка схемы
После анализа создается схема вентиляции, в которой определяется расположение оборудования, трассы воздуховодов и ключевые узлы системы. Такой подход позволяет заранее понять, как будет работать система.
Инженерные расчеты
Далее выполняется проектирование расчет систем вентиляции с учетом воздухообмена и аэродинамики. Параллельно выполняется проектирование отопления вентиляции кондиционирования воздуха, чтобы системы не конфликтовали между собой.
Стоимость проектирования вентиляции
Стоимость всегда рассчитывается индивидуально. Вентиляция проектирование стоимость зависит от площади, сложности объекта и уровня системы.
Мы заранее выполняем расчет стоимости проектирования вентиляции, чтобы клиент понимал бюджет. При необходимости можно ориентироваться на стоимость проектирования вентиляции за м2, однако точная проектирование вентиляция цена определяется только после анализа объекта.
Все условия фиксируются в договоре на проектирование вентиляции, что обеспечивает прозрачность и понятные сроки выполнения работ.
Проектирование вентиляции жилых объектов
В жилых зданиях важно создать комфорт без лишнего шума. Проектирование вентиляции жилого дома выполняется с учетом образа жизни и планировки.
При работе с многоквартирными зданиями проектирование вентиляции многоквартирного дома требует учета шахт и общедомовых систем. Также выполняется проектирование систем вентиляции в многоквартирном доме с соблюдением всех норм.
Для частных объектов разрабатывается проектирование системы вентиляции частного дома с индивидуальными решениями. Мы предоставляем услуги по проектированию вентиляции для частного дома, включая частное проектирование вентиляции под конкретные задачи.
Коммерческие и общественные здания
Проектирование вентиляции общественного здания требует учета переменных нагрузок и потоков людей. В сфере ресторанов и кафе выполняется проектирование вентиляции общественного питания, где важно удаление запахов и комфорт посетителей.
При разработке решений учитывается проектирование предприятий общественного питания вентиляция, а также особенности кухонных зон. Отдельно выполняется проектирование вентиляции ресторана с разделением потоков воздуха.
В гостиницах применяется проектирование вентиляции гостиниц с упором на тишину и индивидуальный климат. Также мы реализуем проектирование вентиляции школ и складских объектов.
Промышленные и производственные объекты
Промышленные системы требуют высокой точности. Проектирование вентиляции производства учитывает технологические процессы, пыль и тепловые нагрузки.
В таких проектах выполняется проектирование вентиляции производственного здания и проектирование вентиляции промышленных предприятий с учетом специфики отрасли.
Проектирование вентиляции цеха требует локальных решений. В зависимости от задач применяется проектирование производственной вентиляции или проектирование промышленной вентиляции.
Дополнительно выполняется проектирование вентиляции производственных помещений с интеграцией охлаждения при необходимости.
Системы безопасности и специальные решения
Для объектов с повышенными требованиями выполняется противодымная вентиляция проектирование и разработка систем дымоудаления.
В рамках проекта создается проектирование систем противодымной вентиляции и проектирование системы противодымной вентиляции зданий. Также выполняется проектирование пожарной вентиляции.
Стоимость рассчитывается отдельно, так как проектирование противодымной вентиляции стоимость зависит от сложности объекта.
Дополнительно мы реализуем проектирование вентиляции бассейна, лабораторий и технологических помещений.
Типы систем вентиляции
В зависимости от задач применяется проектирование приточной вентиляции для подачи свежего воздуха. Для комплексных решений используется проектирование приточно вытяжной вентиляции, обеспечивающее баланс потоков.
Для удаления загрязнений выполняется проектирование систем вытяжной вентиляции. Также разрабатывается проектирование сетей вентиляции, обеспечивающее распределение воздуха.
Современные решения включают проектирование систем автоматизации вентиляции, что позволяет управлять системой автоматически.
Интеграция инженерных систем
Эффективность достигается при объединении систем. Мы выполняем проектирование систем вентиляции и кондиционирования с учетом всех нагрузок.
Также реализуется проектирование систем отопления и вентиляции зданий и проектирование систем отопления вентиляции кондиционирования воздуха.
Дополнительно выполняется проектирование систем вентиляции отопления и водоснабжения и проектирование систем водоснабжения и вентиляции.
Проектирование систем вентиляции
Основная задача — надежность. Выполняется проектирование систем вентиляции зданий и сооружений с учетом всех факторов.
Также разрабатывается проектирование системы вентиляции в помещении и проектирование вентиляции помещений различного назначения.
Все решения входят в проектирование инженерных систем вентиляции.
Монтаж и реализация
После проекта выполняется проектирование и монтаж вентиляции. Для частных объектов — проектирование и монтаж вентиляции дома, для коммерческих — комплексные решения.
Также выполняется проектирование монтаж систем вентиляции отопления и проектирование монтаж кондиционирования вентиляции.
В сложных проектах применяется проектирование и строительство вентиляции под ключ.
Расчеты и примеры
В процессе работы выполняется проектирование расчет вентиляции кондиционирования и расчет проектирования систем вентиляции и кондиционирования.
По запросу предоставляется проектирование вентиляции пример с полной документацией.
Проектирование вентиляции в Санкт-Петербурге
Мы выполняем проектирование вентиляции Санкт-Петербург и проектирование вентиляции СПб для объектов любой сложности. Также доступно проектирование вентиляции онлайн.
О компании
Мы — профессиональная компания проектирование вентиляции с опытом реализации сложных объектов. Каждый проект ведет проектирование вентиляции специалист с практическим опытом.
Мы выполняем проектирование вентиляции организации, жилых, коммерческих и промышленных объектов под ключ.
Почему важно грамотное проектирование
Ошибки на этапе проектирования приводят к перерасходу бюджета и проблемам в эксплуатации. Грамотный проект позволяет снизить затраты и обеспечить комфорт.
Если вам требуется проектирование вентиляции — важно доверить эту задачу специалистам с опытом и системным подходом.





