Приточная вентиляция и кондиционирование в квартире 80 м² | ЖК Светлана Парк
Приточная вентиляция и сплит-системы Haier в квартире 80 м²
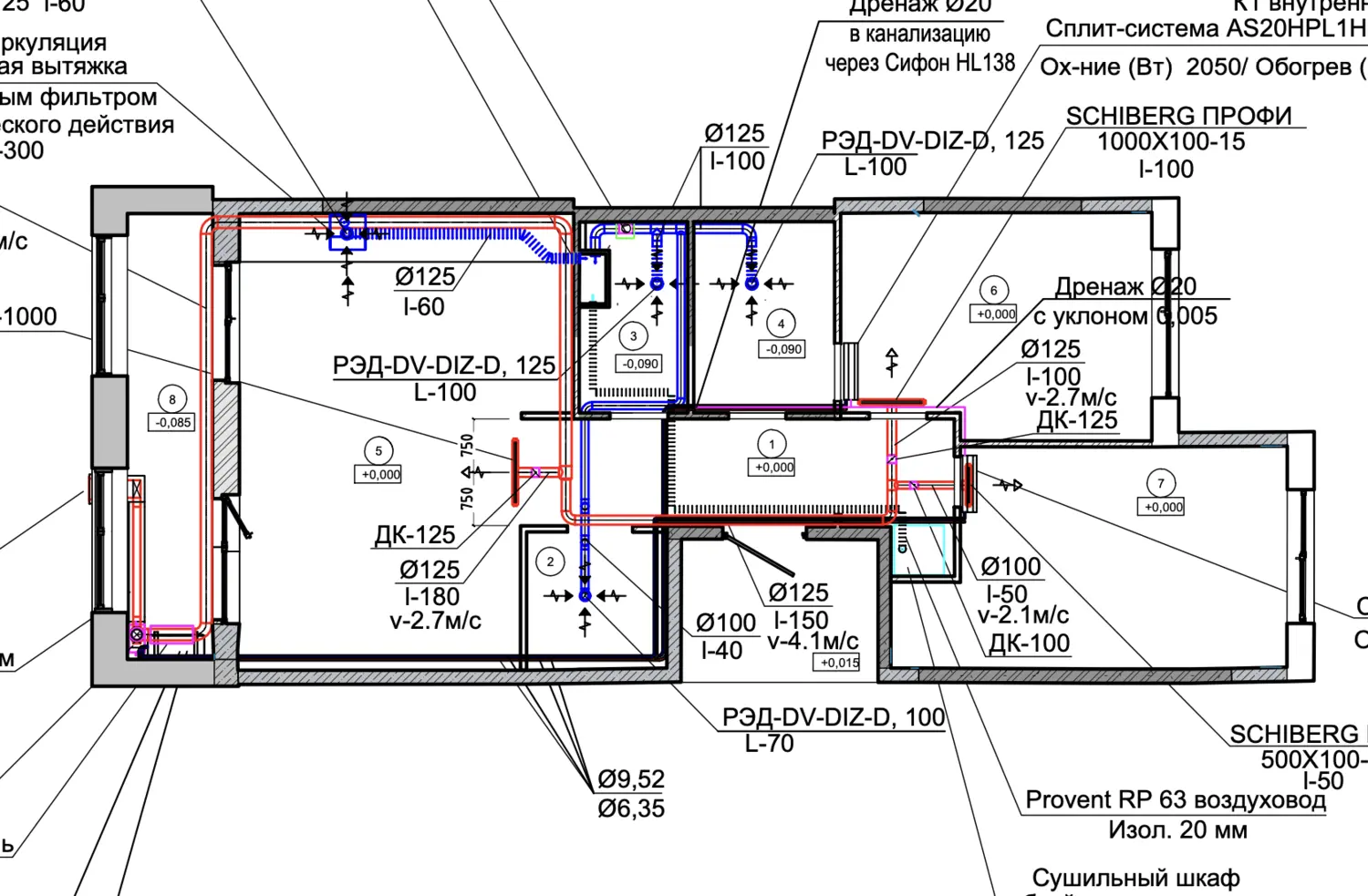
В Санкт-Петербурге, в ЖК бизнес-класса «Светлана Парк» реализован проект современной системы вентиляции и кондиционирования для квартиры площадью 80 м². Главная задача заключалась в том, чтобы обеспечить полноценный воздухообмен с минимальным занижением потолков, гарантировать бесшумную работу и органично вписать оборудование в интерьер. Управление климатом осуществляется полностью дистанционно через Wi-Fi.
Стоимость проекта:1 350 000 руб.
Срок выполнения:20 дней
Адрес:СПб, ул. Манчестерская, д. 5
Задачи проекта
Минимальное занижение потолков
Тихая работа всех систем
Удалённое управление климатом через Wi-Fi
Энергоэффективность и надёжность
Эстетичная интеграция решёток SCHIBERG ПРОФИ
Аккуратная прокладка трасс и воздуховодов
Ключевые элементы проекта
Вентиляция
- Приточная установка Horynize CF-500 с фильтрами G4 и EPA E11
- Воздуховоды Provent RP63 — двустенные HDPE с антистатическими и антибактериальными свойствами
- Щелевые решётки РЭДВЕНТ и дизайнерские скрытые решётки SCHIBERG ПРОФИ
- Камеры статического давления Redvent
- Канальный вентилятор Soler Palau TD EVO-125
Кондиционирование
- Две сплит-системы Haier AS20HPL1HRA / 1U20HPL1FRA (охлаждение 2,05 кВт, обогрев 2,1 кВт)
Основные регионы наших объектов
Москва и Санкт-Петербург
E-mail: zakaz@aero-control.ru
Telegram: написать
Услуги
|
Оформите заявку на сайте, мы свяжемся с вами в ближайшее время и ответим на все интересующие вопросы.
|
Заказать проект
|