Описание Navien 735GTD
Navien (Навиен) 735GTD представляет собой модель двухконтурного котла, разработанного для обеспечения помещения горячей водой и отоплением. Модель оборудована надежной защитой от замерзания воды в холодное время года. Агрегат изготовлен из прочной нержавеющей стали, что способствует уменьшению веса конструкции в целом. Удобная система управления обеспечивает комфортное использование оборудования.
Особенности и преимущества:
- Высокая термоэффективность.
- Возможность переоборудования для работы на жидком топливе.
- Дистанционное управление, несколько режимов работы, пульт в комплекте.
- Система самодиагностики.
- Защита от низкого уровня воды, отсутствия тяги, перебоя подачи топлива, перегрева и замерзания.
- GTD — котлы полностью и нержавеющей стали.
- GPD — котлы из жаропрочной стали.
- Специальный каркас для транспортировки и установки.
Navien "GTD/GPD" – это серия качественных двухконтурных котлов, отличающихся своей прочностью и надежностью. Каждая модель производиться из износостойкой стали, что значительно уменьшило вес конструкции. Благодаря этому повысилось удобство монтажа агрегатов. Все модели оборудованы удобной системой дистанционного управления и имеют пульт в комплекте.
|
Вид нагрева
|
газовые |
|
Монтаж
|
напольные |
|
Производитель
|
Navien |
|
Контуры
|
Двухконтурные |
|
Страна
|
Корея |
|
Самодиагностика
|
Да |
|
Модель
|
Navien 735GTD |
|
Max мощность, кВт
|
81,4 |
|
Вес, кг
|
193 |
|
Топливо
|
Газ |
|
Электрическая мощность, Вт
|
320 |
|
Тип котла
|
Энергозависимый |
|
Камера
|
Закрытая |
|
Материал теплообменника
|
Стальные |
|
Тип теплообменника
|
Раздельный |
|
Тип розжига
|
Пьезоэлектрический |
|
Min мощность, кВт
|
81,4 |
|
Max давление отопит контура , Атм
|
3,5 |
|
Min давление отопит контура , Атм
|
0,1 |
|
Горелка
|
Дутьевая |
|
Max расход природного газа, м³/ч
|
8 |
|
Номинальное давление природного газа, мбар
|
20 |
|
Присоединительный ø дымохода, мм
|
148 |
|
Присоединительный ø газопровода, дюйм
|
5/8 |
|
Присоединительный ø контур отопления, дюйм
|
1 1/2 |
|
Термостат защиты от перегрева
|
Да |
|
Электронная система управления
|
Да |
|
Контроль пламени
|
Да |
|
Интуитивно понятное управление
|
Да |
|
Max расход сжиженного газа, кг/ч
|
7 |
|
Защита от замерзания
|
Да |
|
Функциональный ЖК дисплей
|
Да |
|
Дистанционное управление
|
Да |
|
Основные режимы
|
Отопление/ГВС |
|
Гарантия
|
1 год |
|
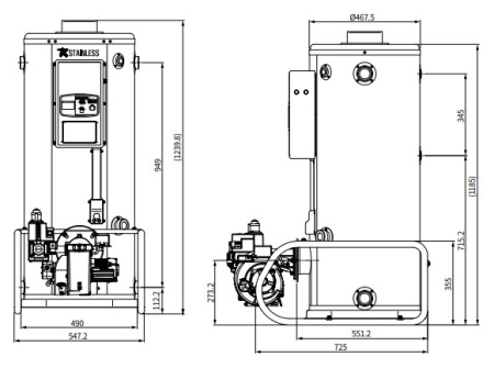
Высота внутр, см
|
124 |
|
Ширина внутр, см
|
54,7 |
|
Глубина внутр, см
|
83,7 |
|
Габариты (ВхШхГ)
|
124x54,7x83,7 |
|
Напряжение (В-Фаза-Гц)
|
220 |
Для покупки товара в нашем интернет-магазине выберите понравившийся товар и добавьте его в корзину. Далее перейдите в Корзину и нажмите на «Оформить заказ» или «Быстрый заказ».
Когда оформляете быстрый заказ, напишите ФИО, телефон и e-mail. Вам перезвонит менеджер и уточнит условия заказа. По результатам разговора вам придет подтверждение оформления товара на почту или через СМС. Теперь останется только ждать доставки и радоваться новой покупке.
Оформление заказа в стандартном режиме выглядит следующим образом. Заполняете полностью форму по последовательным этапам: адрес, способ доставки, оплаты, данные о себе. Советуем в комментарии к заказу написать информацию, которая поможет курьеру вас найти. Нажмите кнопку «Оформить заказ».
Оплачивайте покупки удобным способом. В интернет-магазине доступно 3 варианта оплаты:
- Наличные при самовывозе или доставке курьером. Специалист свяжется с вами в день доставки, чтобы уточнить время и заранее подготовить сдачу с любой купюры. Вы подписываете товаросопроводительные документы, вносите денежные средства, получаете товар и чек.
- Безналичный расчет при самовывозе или оформлении в интернет-магазине: карты Visa и MasterCard. Чтобы оплатить покупку, система перенаправит вас на сервер системы ASSIST. Здесь нужно ввести номер карты, срок действия и имя держателя.
- Электронные системы при онлайн-заказе: PayPal, WebMoney и Яндекс.Деньги. Для совершения покупки система перенаправит вас на страницу платежного сервиса. Здесь необходимо заполнить форму по инструкции.
Экономьте время на получении заказа. В интернет-магазине доступно 4 варианта доставки:
- Курьерская доставка работает с 9.00 до 19.00. Когда товар поступит на склад, курьерская служба свяжется для уточнения деталей. Специалист предложит выбрать удобное время доставки и уточнит адрес. Осмотрите упаковку на целостность и соответствие указанной комплектации.
- Самовывоз из магазина. Список торговых точек для выбора появится в корзине. Когда заказ поступит на склад, вам придет уведомление. Для получения заказа обратитесь к сотруднику в кассовой зоне и назовите номер.
- Постамат. Когда заказ поступит на точку, на ваш телефон или e-mail придет уникальный код. Заказ нужно оплатить в терминале постамата. Срок хранения — 3 дня.
- Почтовая доставка через почту России. Когда заказ придет в отделение, на ваш адрес придет извещение о посылке. Перед оплатой вы можете оценить состояние коробки: вес, целостность. Вскрывать коробку самостоятельно вы можете только после оплаты заказа. Один заказ может содержать не больше 10 позиций и его стоимость не должна превышать 100 000 р.